
A Project for Computational Methods 1 to design skyscrapers. Used Revit 2025 took about 3 days in total to finish the design of the skyscraper.

A Project for Computational Methods 1 to design skyscrapers. Used Revit 2025 took about 1 day in total to finish the design of the skyscraper.

A Project for Computational Methods 1 to design skyscrapers. Used Revit 2025 took about 1 day in total to finish the design of the skyscraper.

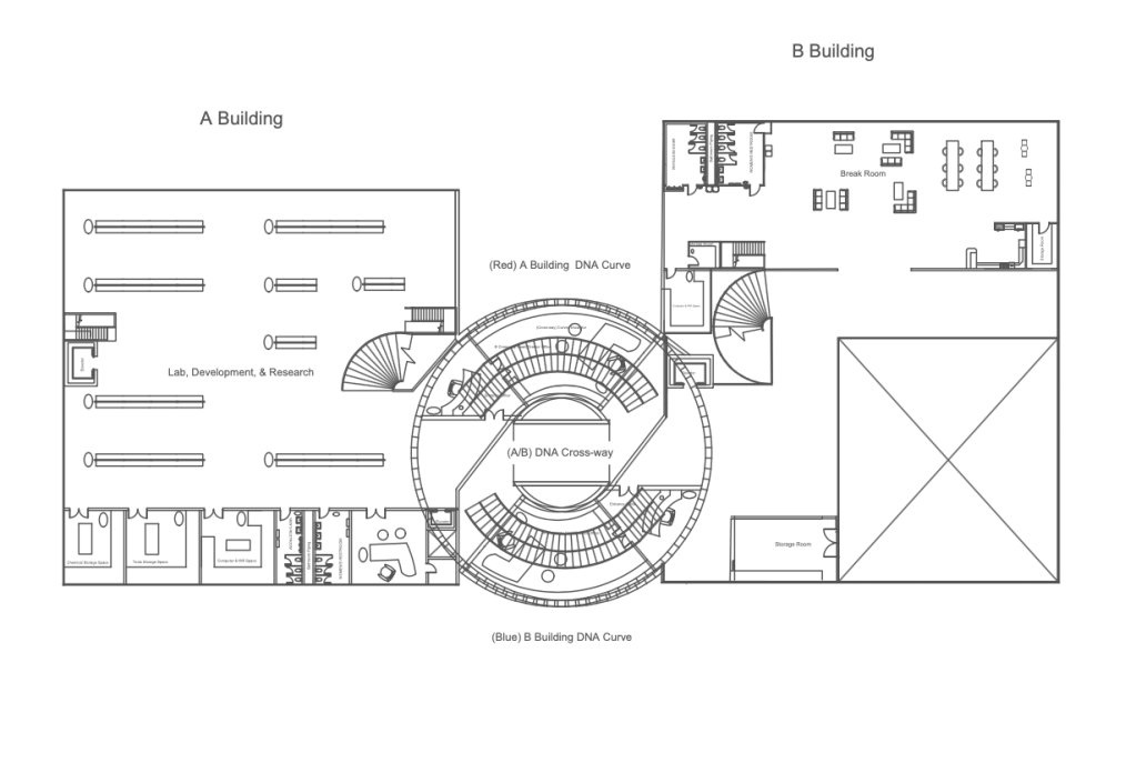
A Project for Computational Methods 1 to design skyscrapers. Used Revit 2025 took about 2 days in total to finish the design of the skyscraper.

While working for an architecture firm had designed a home for grandparents/college students to stay. This home was designed over the summer of 2023.

A Project for Computational Methods 1 to design an urban street. Used Revit 2025 took about 2 days in total to finish the design of the building.

While working for an architecture firm had designed a home for grandparents/college students to stay. This home was designed with AutoCAD over the summer of 2022. Took about 3 days and had the head architect rank it.

While a student at Blinn College, taking Graphic Design in 2023. This project took a bit longer than originally expected. For the design ended up have to use AutoCAD, SketchUp, Lumion, and Photoshop. Took about 5 days to have the design set and the photoshop screen finished.

While a student at Blinn College, I took Graphic Design in 2023. Took 3 days to have the full design done on AutoCAD.

While a student at Blinn College, I took Graphic Design in 2023. The design was done on AutoCAD 2023. It only took about 2 days to finish the full design.
